你好,欢迎来到江苏盐城海鑫玻璃机械有限公司!

海鑫产品中心

产品详情
当前位置:首页|产品详情

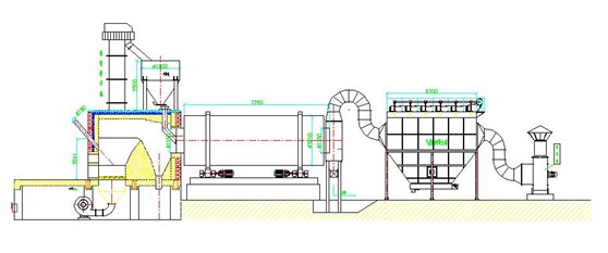
河沙烘干机

  三筒烘干机主要用于烘干一定湿度和粒度范围内颗粒物料,如干粉砂浆行业所用的黄砂,铸造行业用的各种规格型砂,建材水泥行业用的高炉矿渣,小粒度粘土,化工行业用于不起化学变化、不怕高温及烟尘弄脏的小颗粒物料。根据不同行业对烘干后物料终水分要求,烘干后的物料含水量可以达到1-0.5%以下。

进入烘干机内的物料以不粘筒壁及扬料板为宜。进入烘干机内热交换的气体温度不宜高于750℃如有特殊要求高温烘干,烘干机的入口处内筒及扬料板可用耐热钢板制造。